Compressed Air Piping
Aluminium Piping System
Galvanized Iron Piping System
AIRTECH is one of the leading piping contractor with more than 20 years of Experience in Galvanized iron piping system. we will under take the project as a turn key execution. We are servicing a wide gamut of 500 + customers in the fields of TEXTILE, FOUNDRY, SUGAR INDUSTRIES, AUTOMATION, APARTMENT, HOTELS & HOSPITALS ETC., the consistent attention to quality and timely delivery has enabled us to successfully establish ourselves in the tough and competitive business as a pioneer.
Compressed Air Piping
Piping selection directly affects the three key elements of every compressed air system: flow, pressure and air quality. Poor choices in pipe materials, diameter and layout cause flow restrictions, oftern resulting in significant pressure drop. Pressure drop is a main cause of increased energy consumption and under -performing tools and equipment. GI Pipe with continues welding joint construction has a low friction coefficient, providing the best possible laminar flow. Turbo Joints, ARC end, Umperla Bend and Effective fittings further minimize pressure drop for optimum flow and energy efficiency.
Applications
Befire Evaluating Total Network Length
In order to calculate the effective length of the total network, fittings used must also be taken into account. Every direction change, cross manifold, T connection or reduction in line size within the network will cause pressure loss equivalent to adding additional line length.

Proper Slopes and Drops
As for the slope of network pipes, either for lines running along exterior walls or within a building. It must be noted that the feeder pipe may perform both functions: air flow and the elimination of condensed liquids. Secondary pipes attached below the main pipes should include a ball valve and will help eliminate condensation at their feet by the presence of evacuation valves.
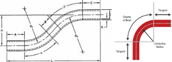
Performed Turbo Bend

ARC Bend Pipe
Ideal for getting around obstacles & correction minor alignment problems.

Special Features



